BBM | STP Architekten

Berufsbildungszentrum

Münnerstadt

Realisierungswettbewerb

zusammen mit ARS Roberto Scarsato

Städtebau
Der Neubau des Berufsbildungszentrums bildet einen organischen Abschluss des Stadtrandes von Münnerstadt. Der neue Baukörper bezieht sich in seiner Höhenentwicklung und Maßstäblichkeit auf das historische Seminargebäude und bildet mit ihm ein städtebauliches Ensemble. Die Dominanz des denkmalgeschützten Gebäudes bleibt dabei gewahrt.
Die Erschließung erfolgt zentral im Bereich der ehemals vorhandenen Garagen – und Lagergebäude vom Fußweg aus. Die historische Natursteinsockel und die Mauer bleiben erhalten und trennen den Fußgängerweg und den Zufahrtsbereich. Unter Einbeziehung der historischen Grundstückseinfriedung wird hier ein attraktiver Zugangsbereich gestaltet. Die Zufahrt für die Anlieferung des Seminargebäudes - und zum Neubau - erfolgen über den neuen Zugangsbereich. Der Eingangsbereich des Berufsbildungszentrums liegt günstig zur Fußgängerbrücke und zur Bushaltestelle am Gymnasium. Externe Fußgängerströme können selbstverständlich am klar definierten Schulgelände vorbei geführt werden.

Architektur und funktionale Anforderungen
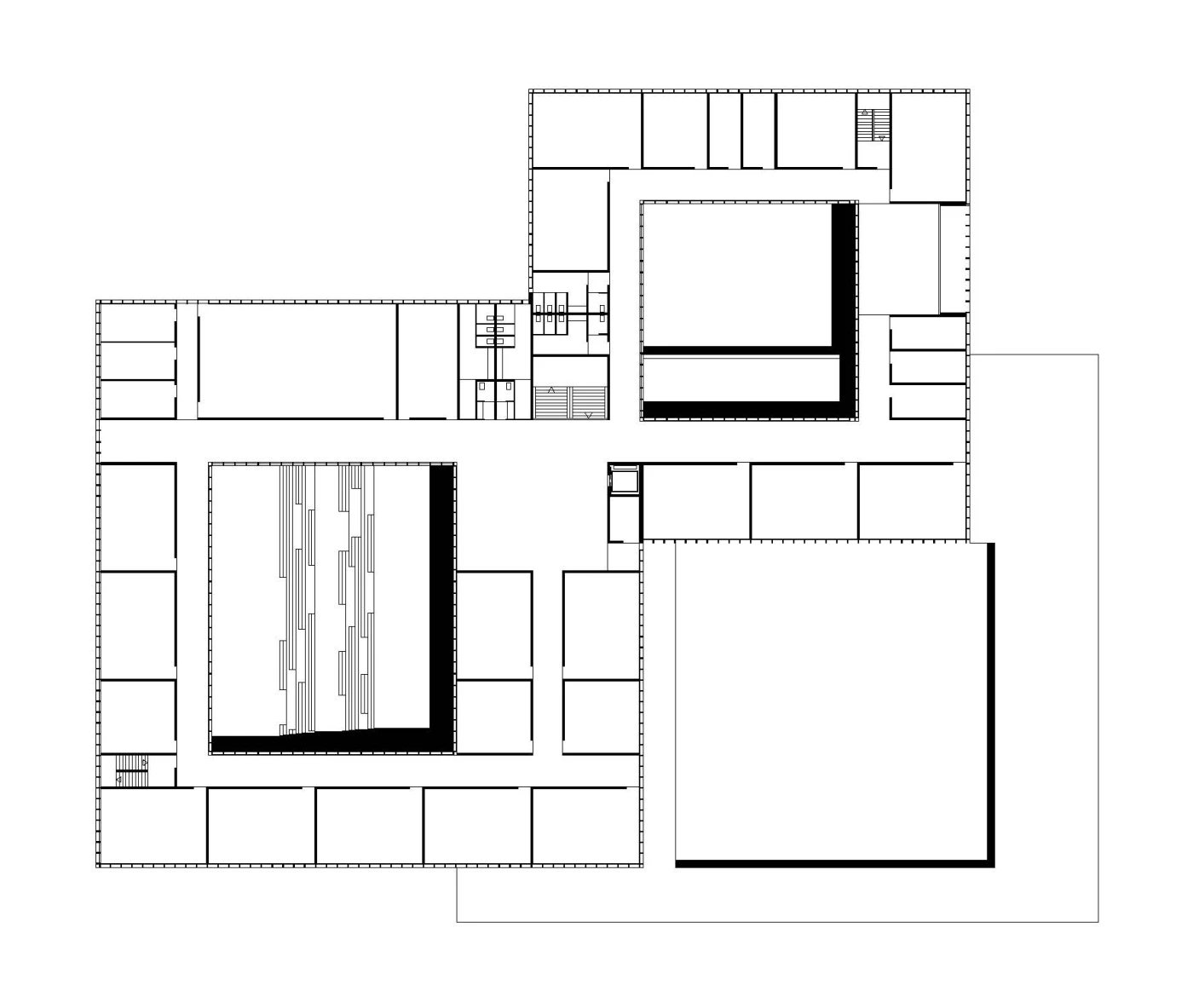
Der Neubau für das Berufsbildungszentrum soll in einer zeitgemäßen Architektursprache entstehen, die sich in den denkmalgeschützten Kontext fügt. Eine großzügige, offene Atmosphäre soll den sechs Schulen einen gemeinsamen Rahmen geben. Verbindende Gemeinsamkeit wird durch die gemeinsame Eingangssituation und den zentralen Erschließungsbereich, der sich über alle Geschosse erstreckt, erreicht. Die gemeinsame Pausenhalle kombiniert mit anderen öffentlichen Funktionsbereichen bildet den Kern und den Mittelpunkt des Bildungszentrums.Angelagert an den gemeinsamen Kern und die gemeinsame Haupterschließungsstruktur sind zwei Atriumhäuser, die den sechs einzelnen Schulen die Möglichkeit bietet eigene räumliche Einheiten zu bilden. Die gewünschten funktionalen Zuordnungen der unterschiedlichen Schulen können durch die geplanten Baukörper gut umgesetzt werden. Durch die Atriumhöfe erhält der komplexe Neubau eine übersichtliche und gut belichtete Erschließungsstruktur, die auch eine identitätsstiftende Wirkung für die verschiedenen Schulen hat.
Die barrierefreie Erreichbarkeit aller Räume ist selbstverständlich gegeben und kann durch den zentralen Kern ökonomisch sinnvoll erreicht werden.