BIZ | STP Architekten

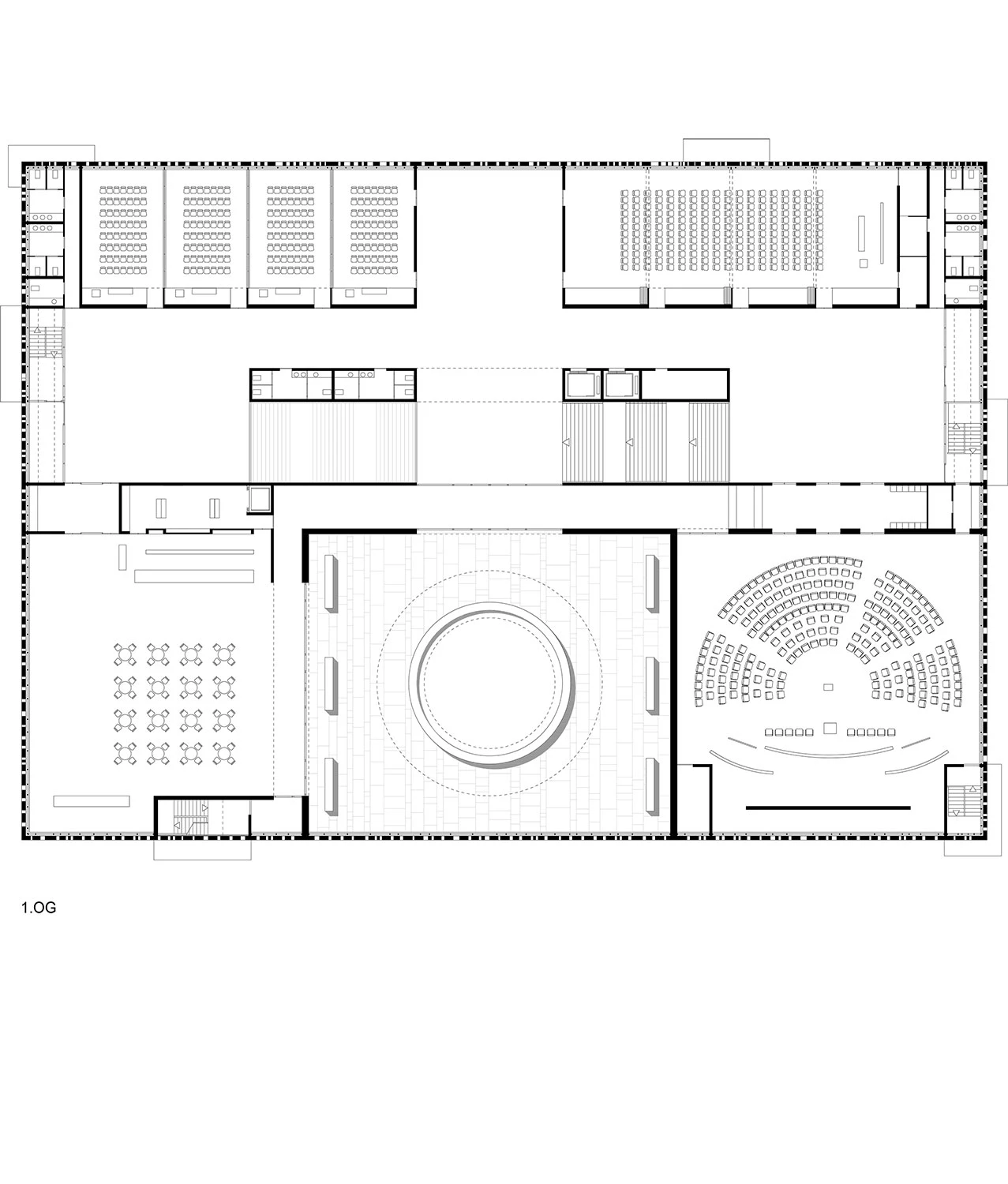
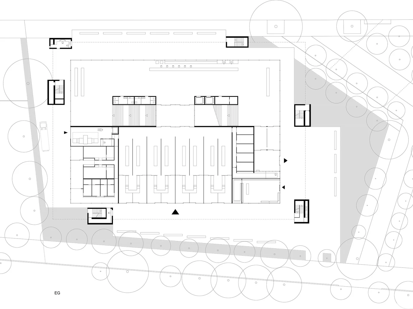
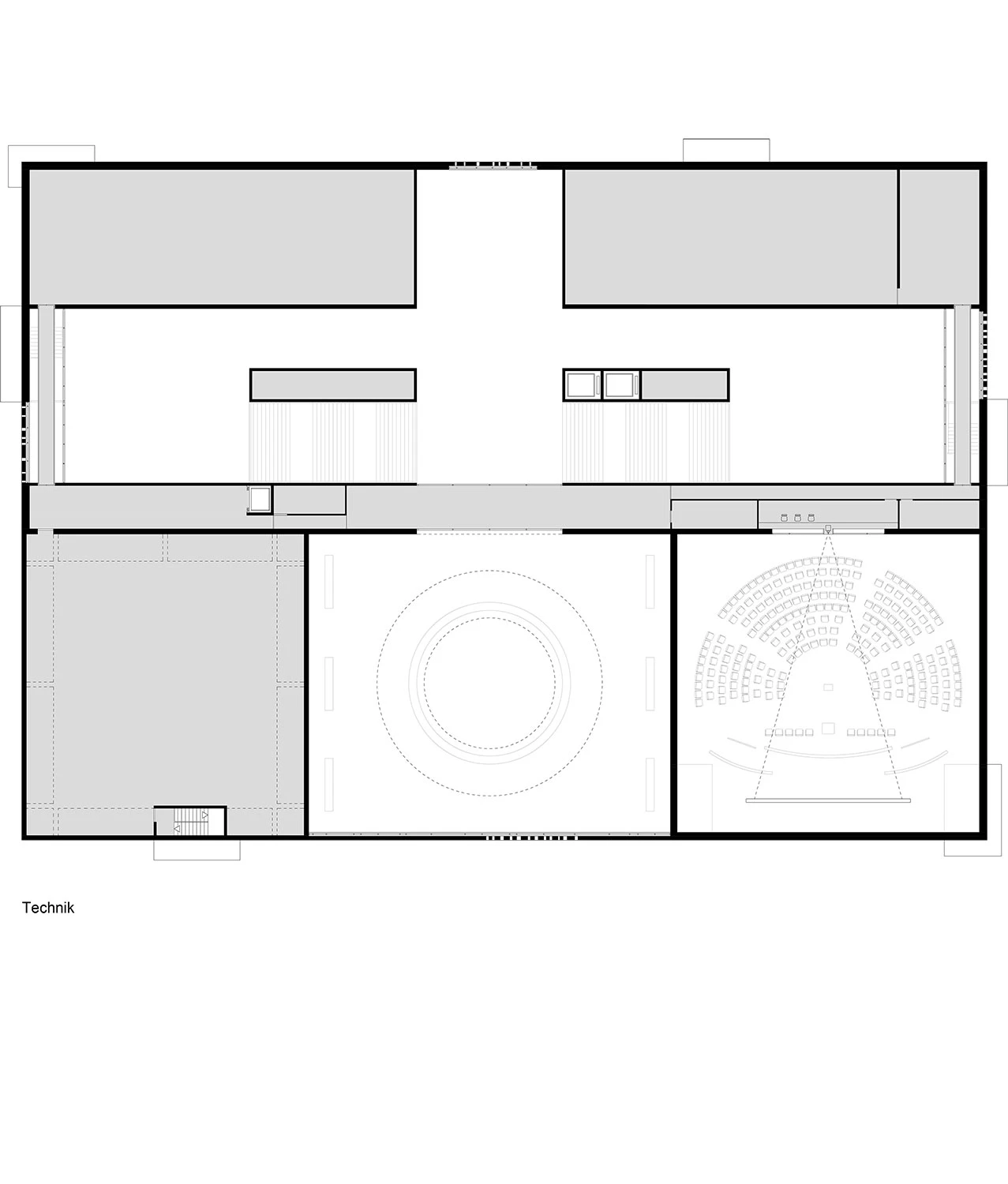
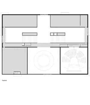
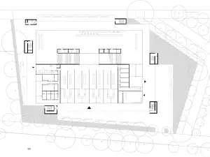
Besucherzentrum Reichstag

Berlin - Mitte

offener 2-stufiger Realisierungswettbewerb
Auswahl 2.Phase
Bauherr Bundesrepublik Deutschland
Außenanlagen TDB Landschaftsarchitekten

zusammen mit ARS Roberto Scarsato