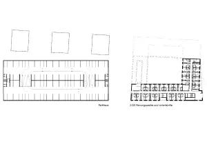
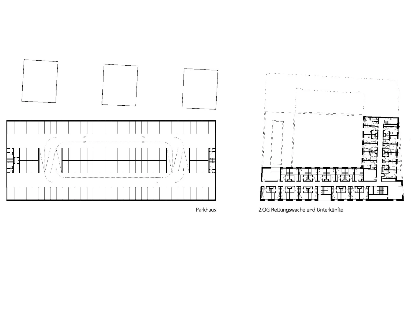
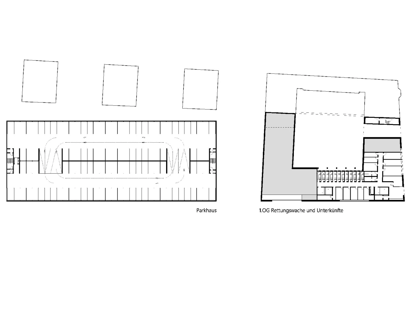
BKK | STP Architekten

Bundeswehrkrankenhaus

Berlin - Mitte

offener Realisierungswettbewerb

zusammen mit ARS Roberto Scarsato