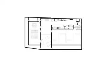
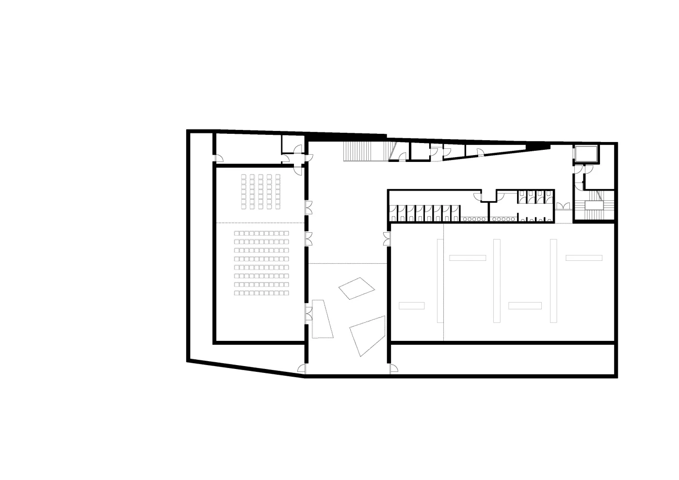
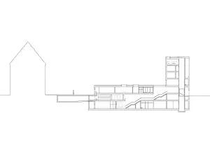
BZM | STP Architekten

Besucherzentrum Memorium Nürnberger Prozesse

Nürnberg

offener Ideen- und Realisierungswettbewerb

zusammen mit ARS Roberto Scarsato