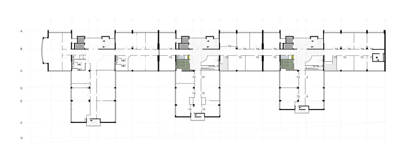
GUD | STP Architekten

Revitalisierung Verwaltungsgebäude

Berlin – Charlottenburg

HOAI LP 1-8
BGF 2.000 m²
Baukosten 1,5 Mio. €
Bauherr GUD