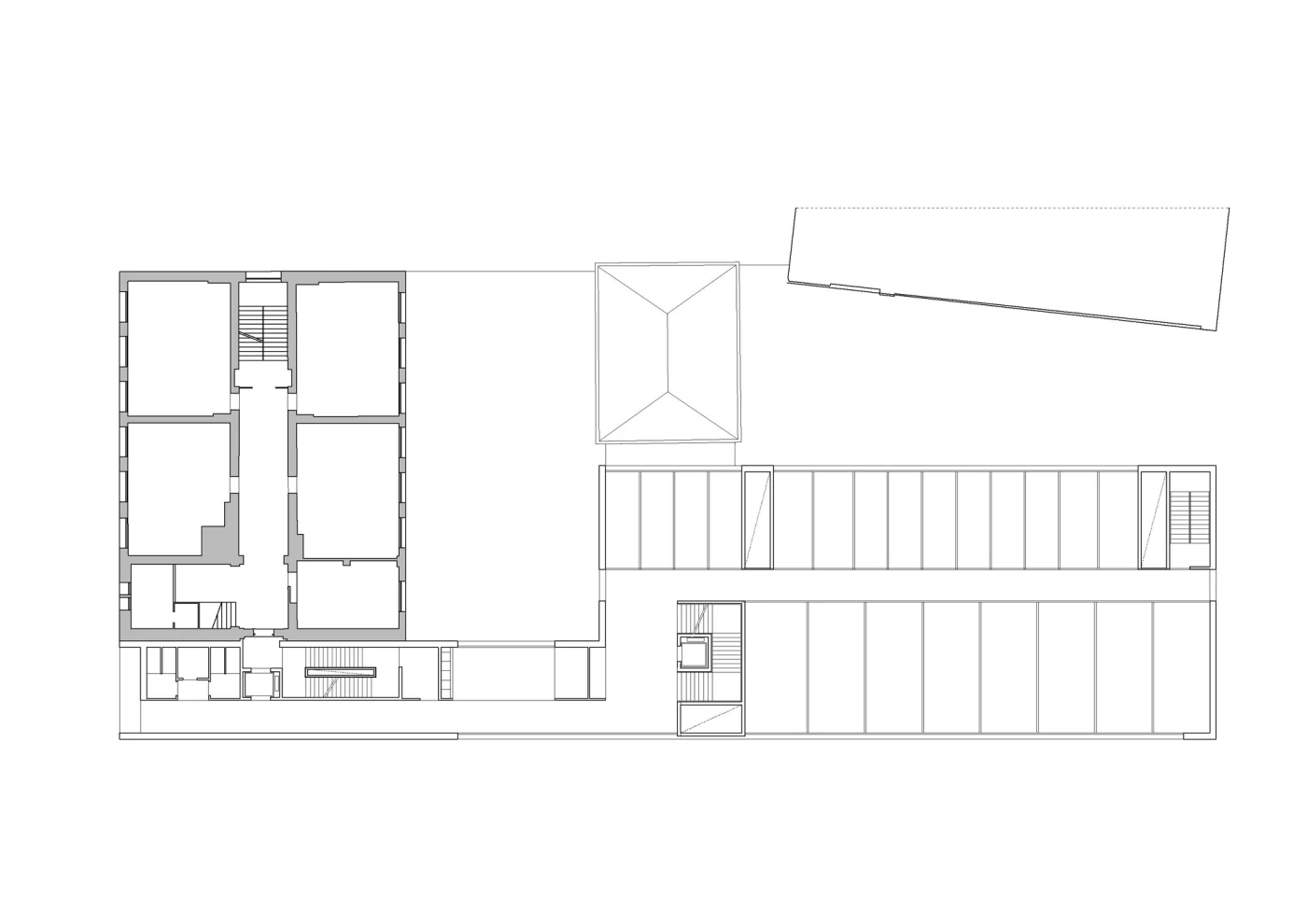
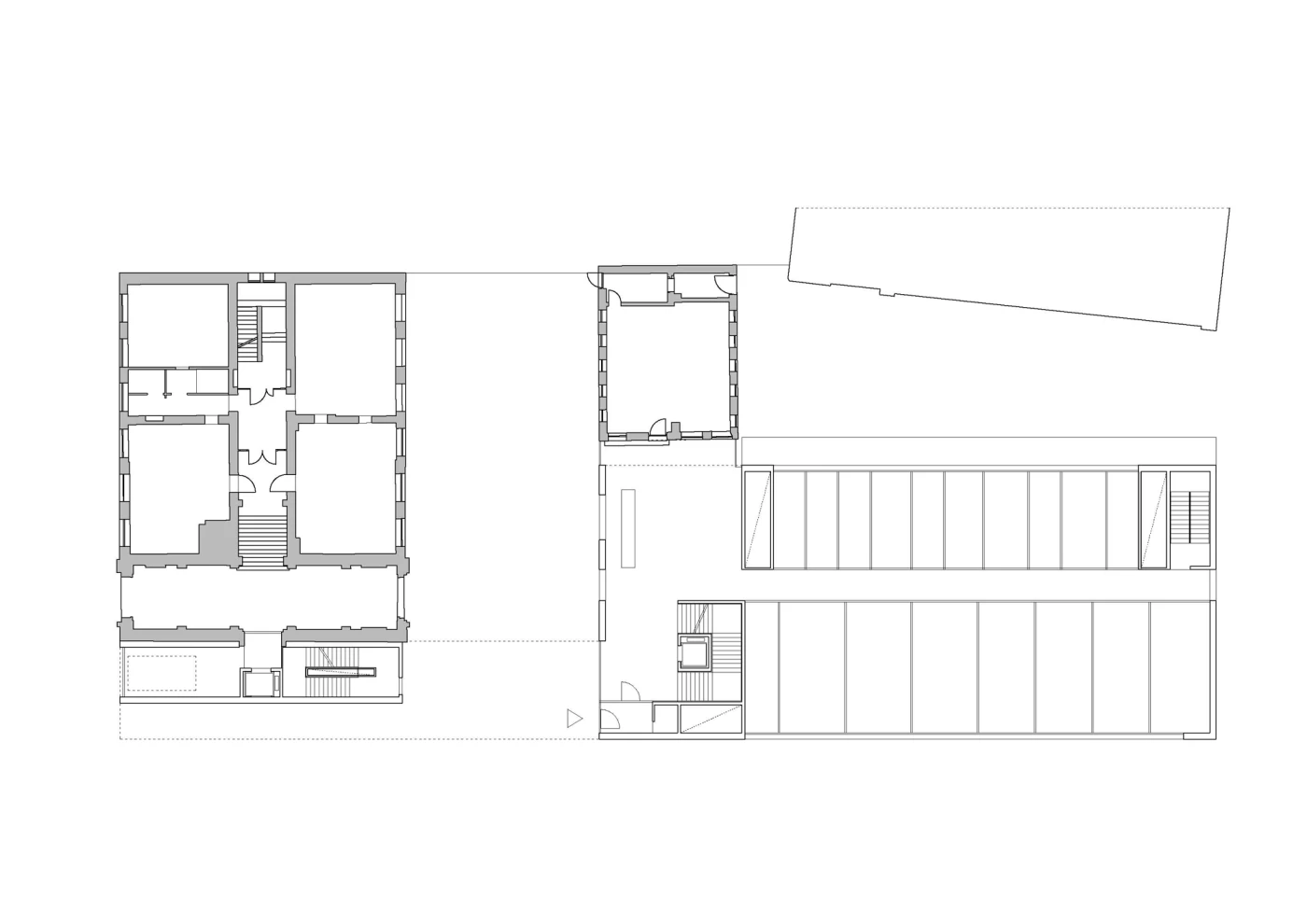
HU 2 | STP Architekten

Laborgebäude Humboldt-Universität

Berlin - Mitte

offener städtebaulicher Ideenwettbewerb

zusammen mit ARS Roberto Scarsato