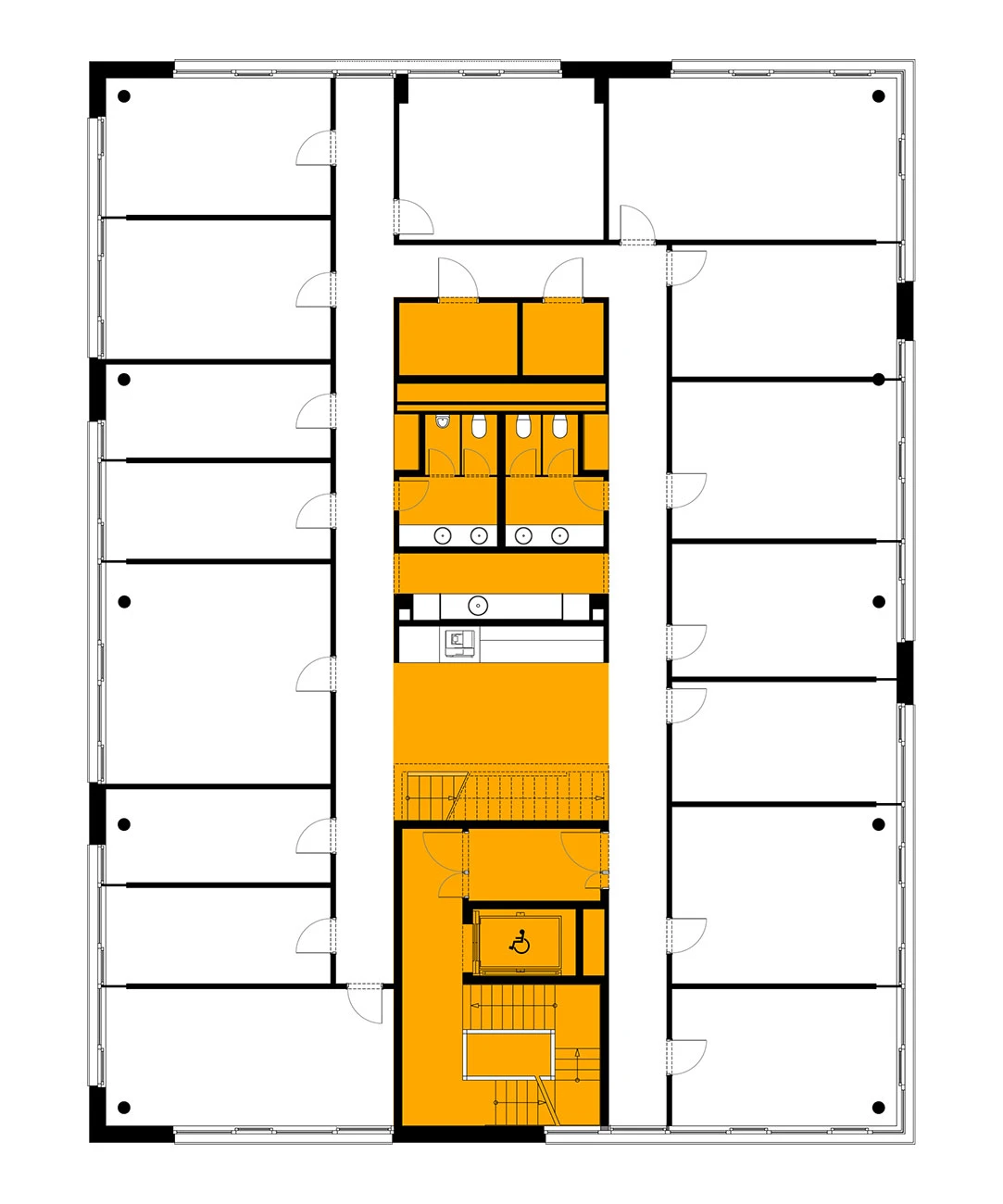
KÖR | STP Architekten

Bürohaus Müller-BBM

Berlin - Steglitz

HOAI LP 1-8
BGF 2950 m²
Baukosten 3 Mio. €
Bauherr Müller BBM Ingenieure GmbH