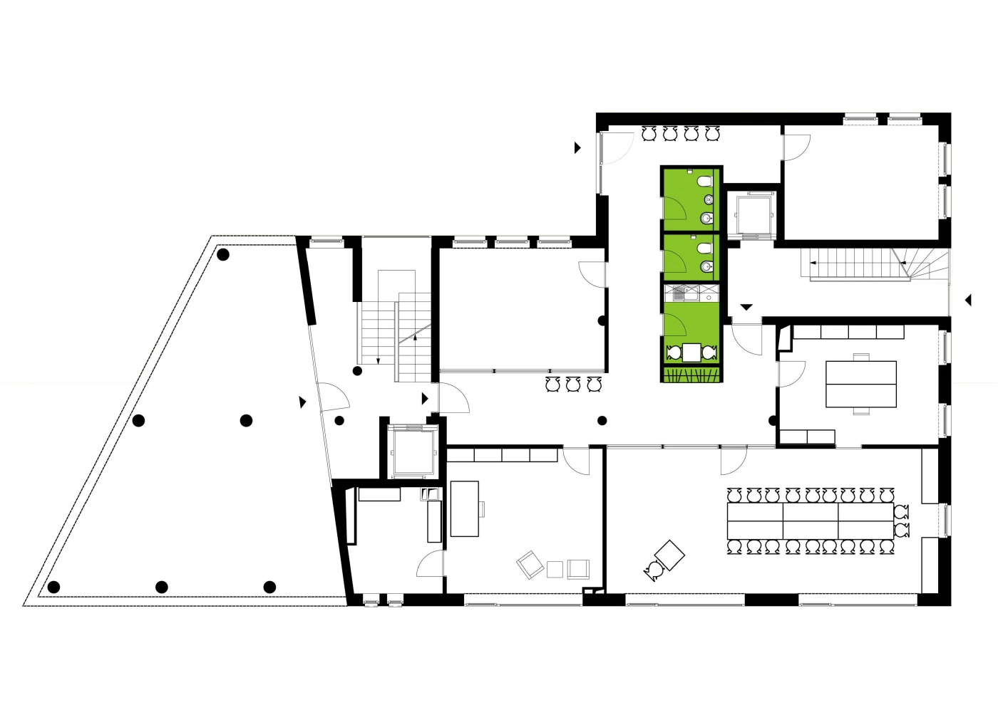
KP BEUTH | STP Architekten

Praxis Kinder-Psychotherapie

Berlin - Pankow

HOAI LP 1-8
BGF 300 m²
Bauherr Privat