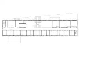
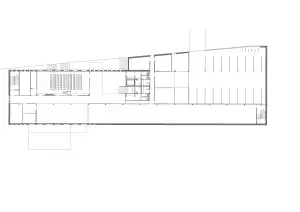
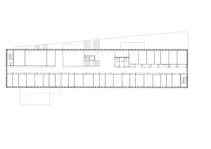
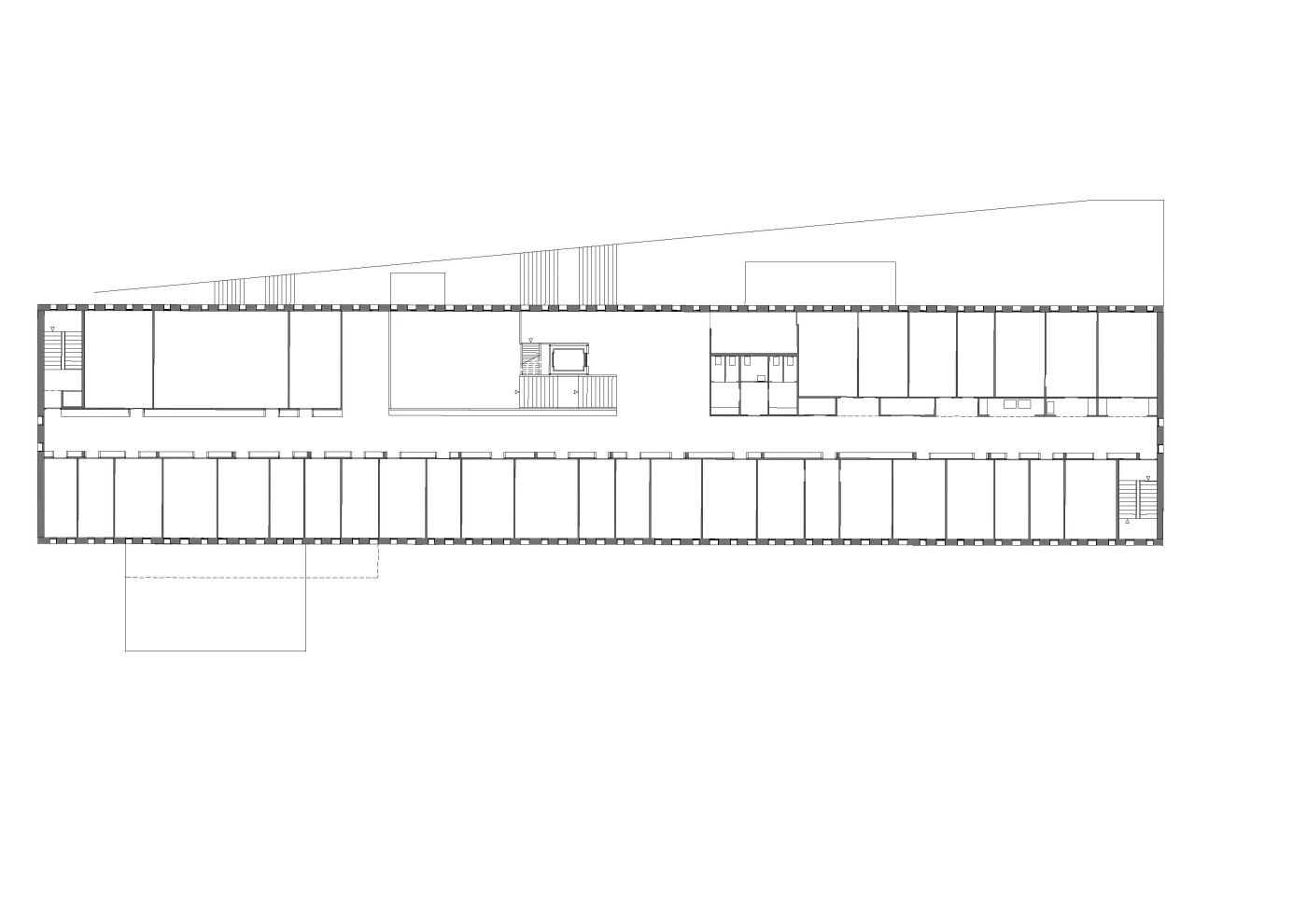
BH | STP Architekten

Bezirkshauptmannschaft

Kirchdorf

offener Realisierungswettbewerb
Auslober Landes‐Immobilien GmbH

zusammen mit ARS Roberto Scarsato