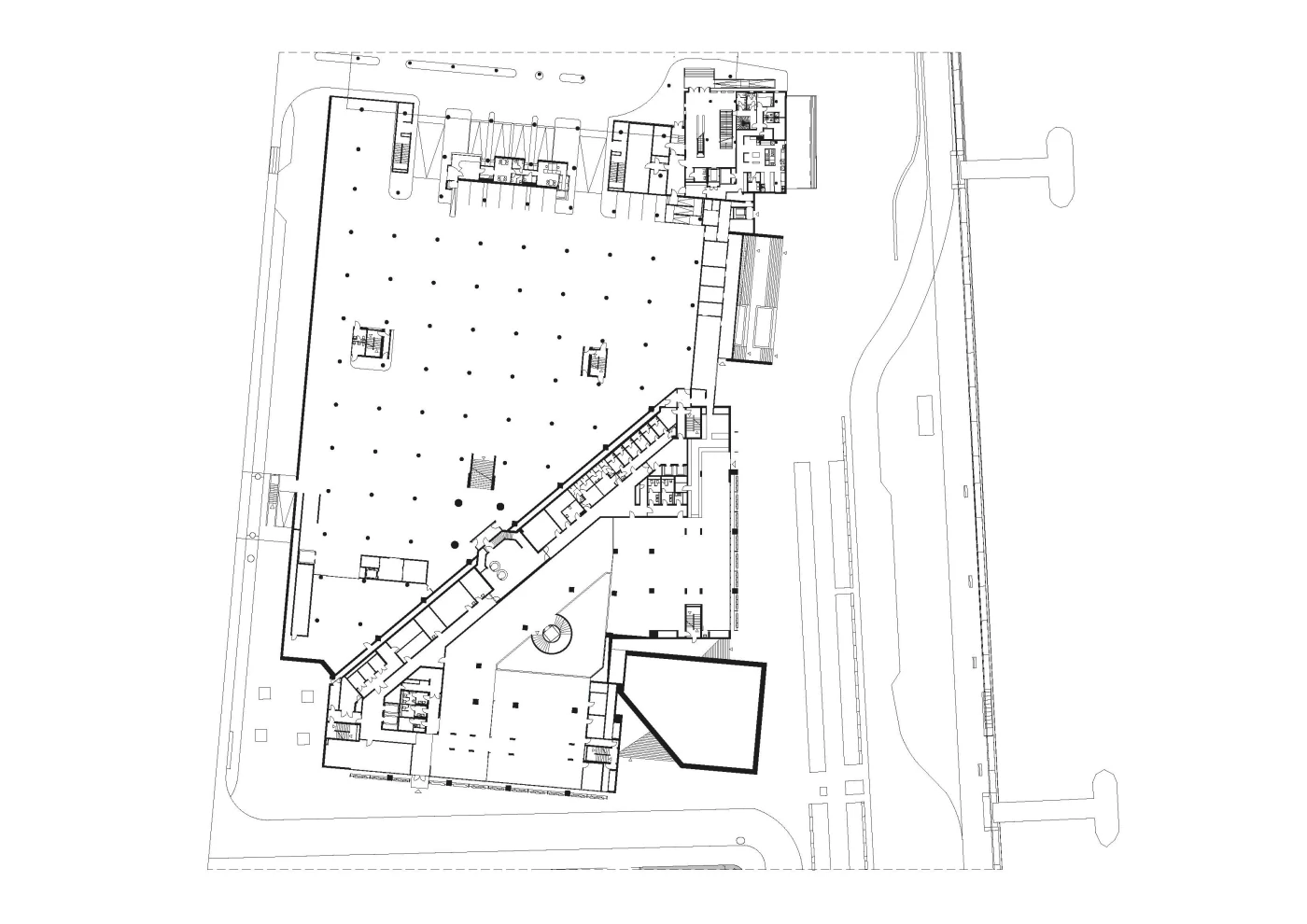
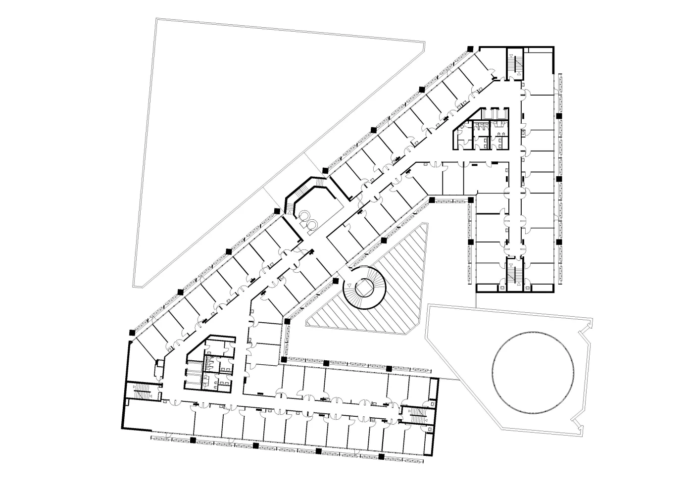
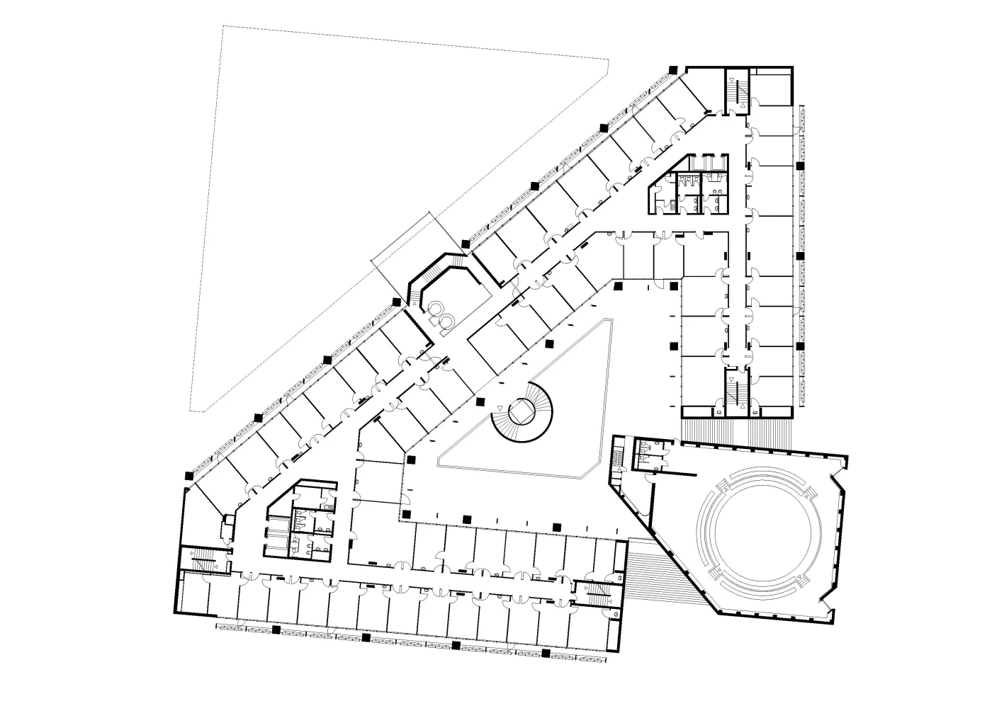
MAINZ 2 | STP Architekten

Rathaus

Mainz

offener Ideenwettbewerb
Außenanlagen TDB Landschaftsarchitekten

zusammen mit ARS Roberto Scarsato