SGM | STP Architekten

Stadtgeschichtsmuseum

Schwerin

offener Realisierungswettbewerb
BGF 5.000 m²
Bauherr Stadt Schwerin

zusammen mit ARS Roberto Scarsato

Leitidee

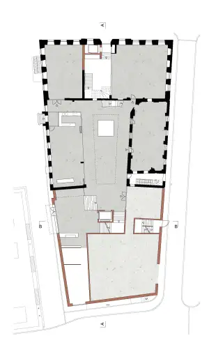
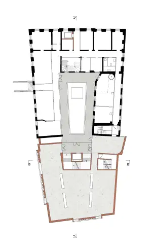
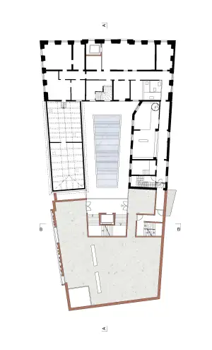
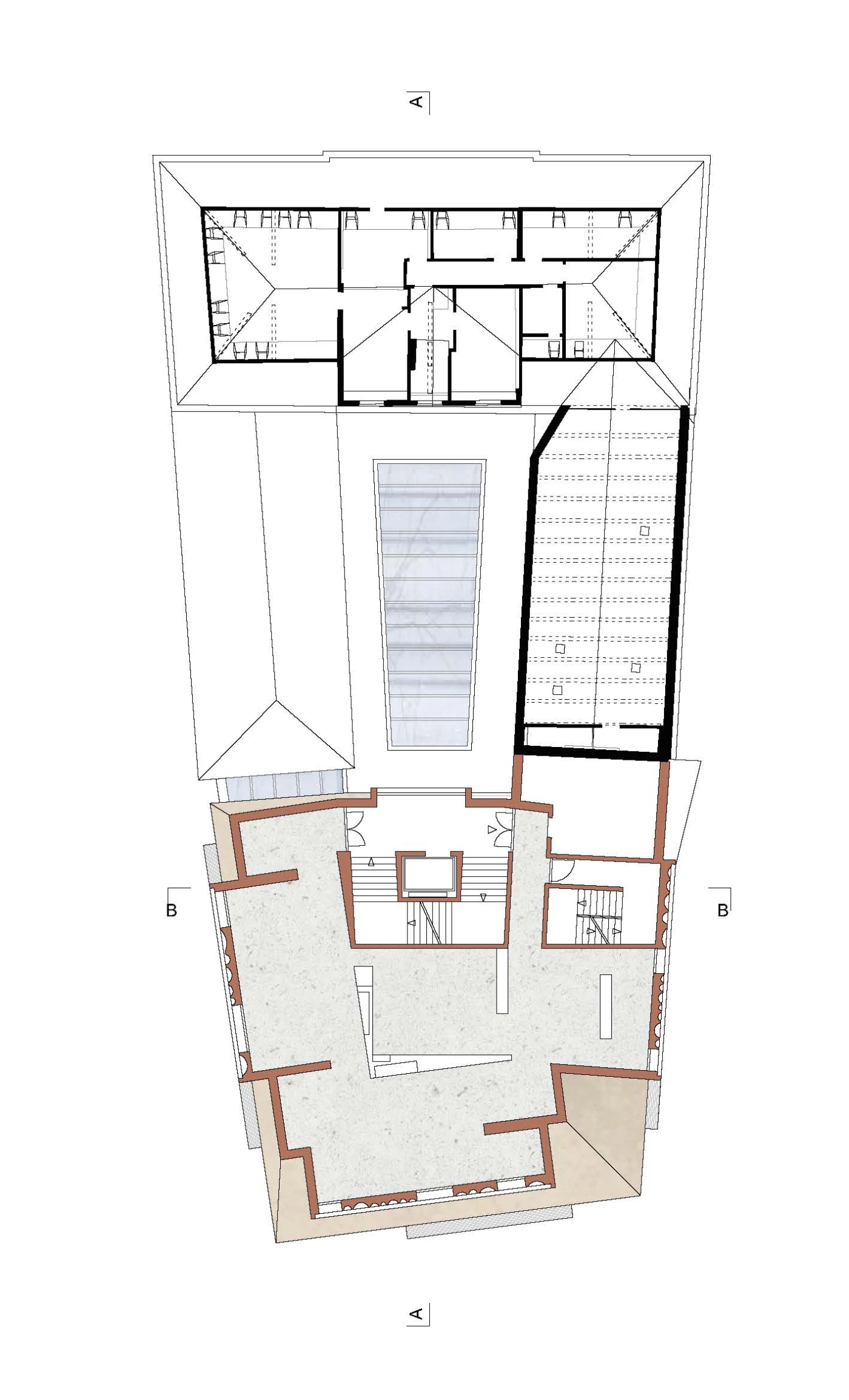
Ein charismatischer Neubau am Schlachtermarkt vervollständigt den Block der Bestandsgebäude. Es entsteht ein zeichenhaftes Gebäudeensemble mit einer Mischung aus Alt und Neu, das der Bedeutung des Museums im Stadtraum entspricht. Der entkernte Hof der Bestandsbauten verbindet sich mit der Eingangshalle des Neubaus zum zentralen Erschließungs - und Veranstaltungsbereich des SGM. Hier befinden sich die frei zugänglichen Ausstellungsbereiche des Welterbe-Informationszentrums, das Stadtmodell, sowie die öffentlichen Bereiche wie Cafeteria und Shop. Neubau und Altbau verschmelzen zwar miteinander, stehen aber mit ihrer jeweils eigenständigen Architektursprache in kontrastreicher Spannung .

Städtebau

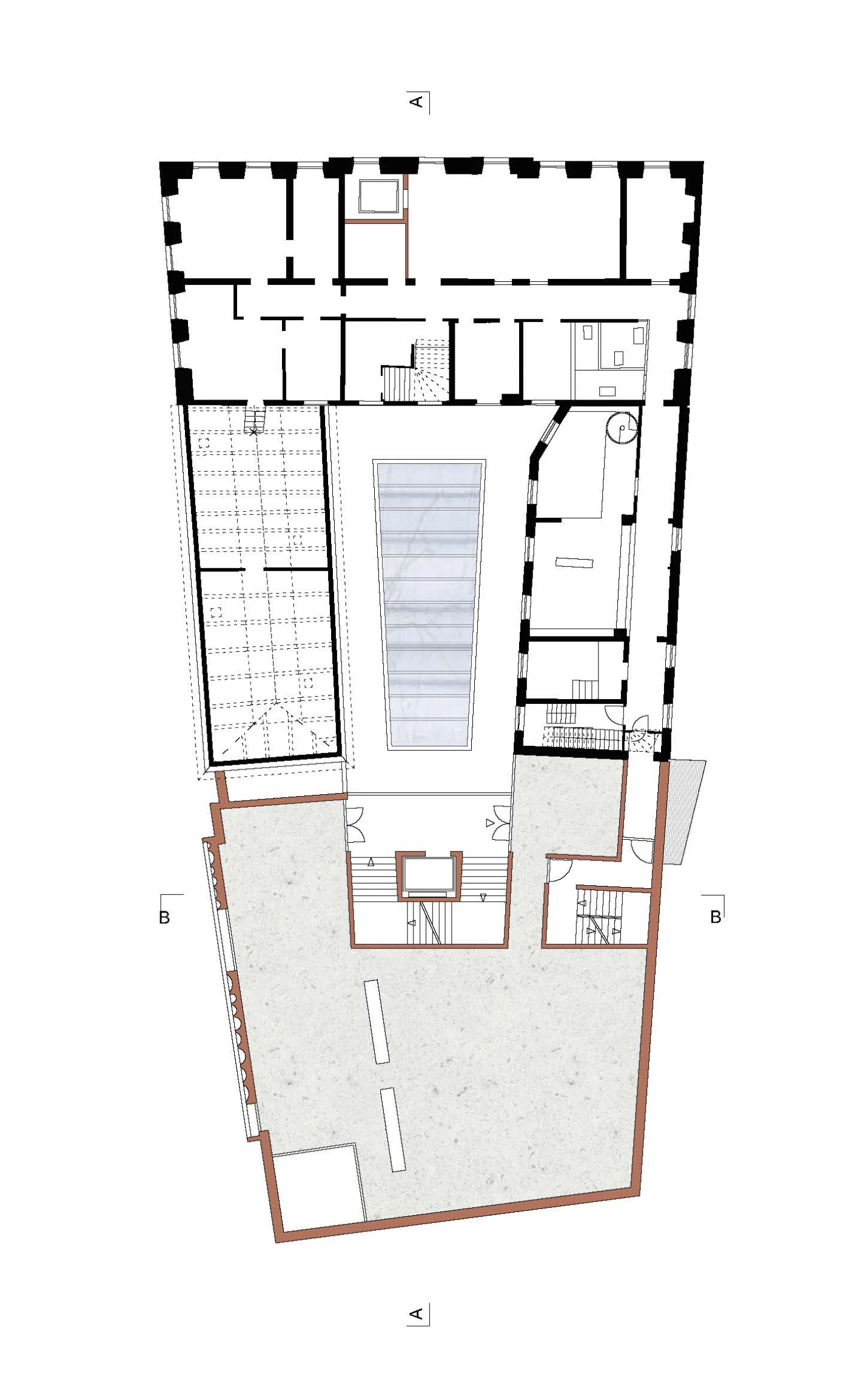
Der Neubau setzt den selbstbewussten nördliche Abschluss des Schlachtermarkts und gibt dem Platz einen neuen Stellenwert im Stadtgefüge. Hier befindet sich der großzügige Eingang des Museums, der in die frei zugänglichen Bereiche führt und das Gebäude mit dem öffentlichen Raum verknüpft. Über eine hohe Eingangshalle gelangt man auf die EG-Ebene, die das gesamte Ensemble aus Alt und Neu erschließt. Der ehemalige Innenhof erhält über dem EG eine Glasdecke und wird zum zentralen Verbindungsraum und Veranstaltungssaal. Der neue Gebäudeteil des Museums stellt das östliche Pendant des Gebäudes an der Puschkinstraße dar und gibt dem SGM die notwendige Außenwirkung im Stadtraum.

Architektur

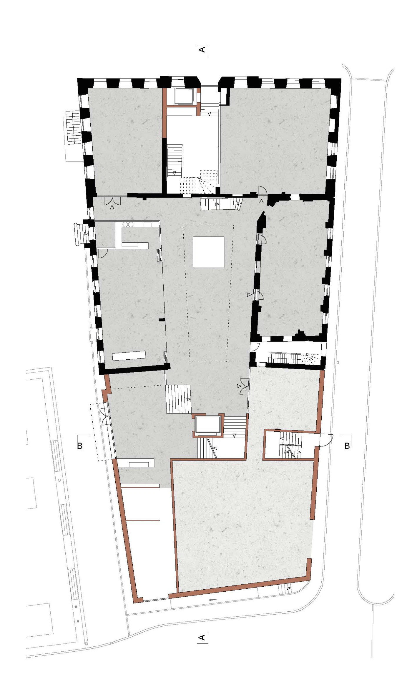
Das Bauvolumen des neuen SGM formt mit den Bestandsbauten einen städtebaulichen Block. Das homogene Volumen des Neubaus orientiert sich an den Traufhöhen der Umgebung. In den höheren Geschossen formt es mit seinen geneigten Fassaden eine differenzierte Dachlandschaft. Anbauten, wie Erker und Gauben zitieren historische Gebäudefiguren und setzen den Neubau in Bezug zur Umgebung. An der großzügigen, barrierefreien Eingangshalle liegt das zentrale Treppenhaus des Neubaus, das über alle Etagen einen Überblick über das Gebäudeensemble bietet und in den ober Etagen zusätzlich einen Blick über die Stadt ermöglicht. In allen Etagen gibt es aus der den Ausstellungsräumen heraus Ausblicke auf die Stadt, die die Ausstellung unmittelbar mit ihr verknüpfen. Die geforderten kleinteiligen Büronutzungen sind in den Bestandsgebäuden untergebracht, während die Ausstellungsräume sich überwiegend im Neubau befinden, wo deren Anforderungen besser erfüllt werden können.

Denkmalschutz

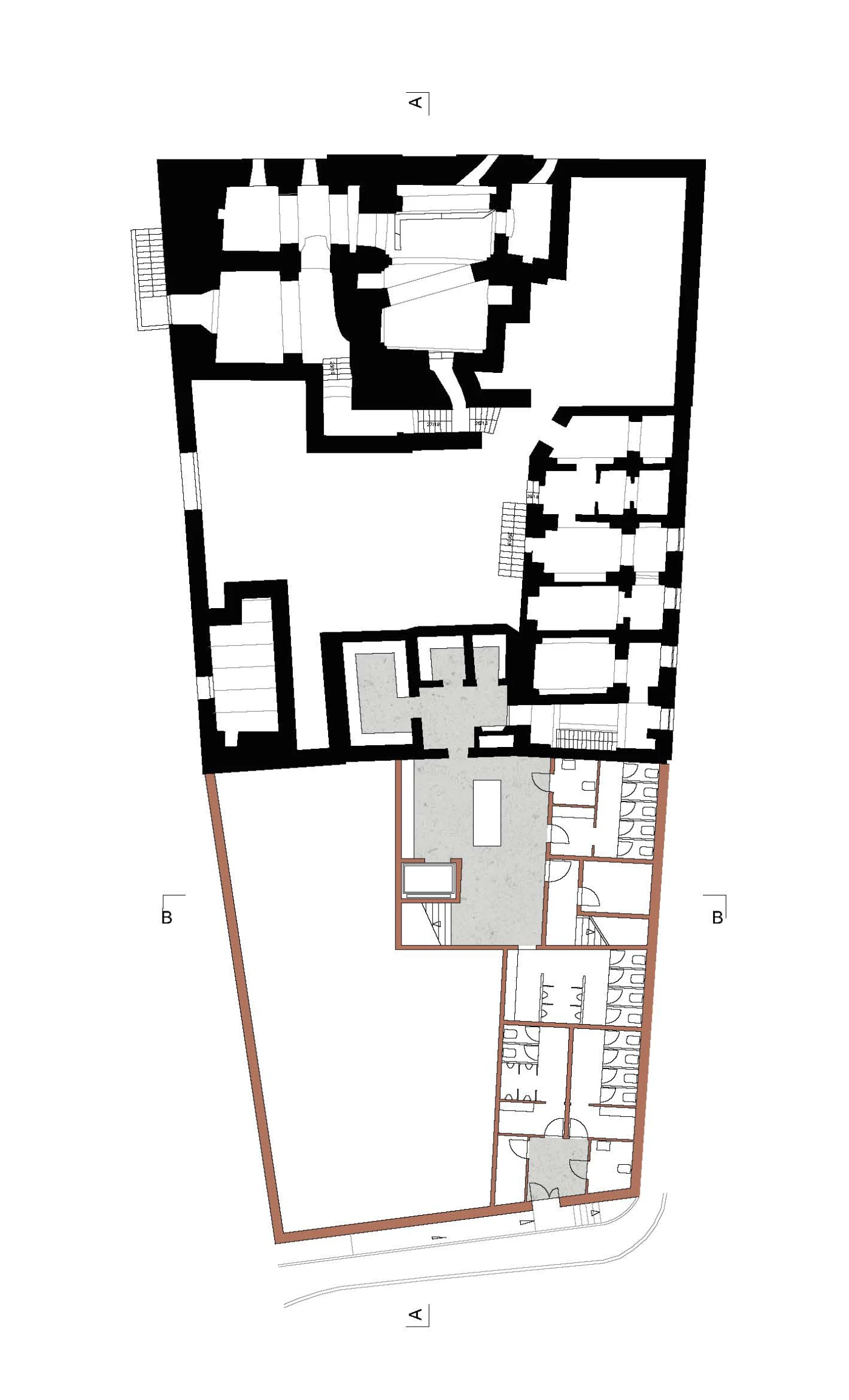
Der denkmalgeschützte Bestand wird von geringwertigen Ein- und Anbauten befreit. Der Innenhof erhält ein Glasdach und wird zum zentralen Erschließungs- und Veranstaltungsraum, der niveaugleich mit den Bestandsräumen im EG liegt. Hier befinden sich in den Bestandsgebäuden die frei zugänglichen Räume der Welterbe-Ausstellungsflächen. Der historische Gewölbekeller wird für Veranstaltungen und Sonderausstellungen erschlossen und zugänglich gemacht. In den kleinteiligeren Raumstrukturen des 1. und 2. OG befinden sich überwiegend die Räume für das Stadtmarketing und die Verwaltungsräume des SGM. Der Zugang von der Puschkinstr. wird mit einem Aufzug barrierefrei ertüchtigt. Die Bestandstreppenhäuser bleiben den Büronutzungen vorbehalten. Die historische Substanz wird soweit wie möglich restauriert und für den Charakter und die Atmosphäre der Räume genutzt. Das gilt auch für die Außen- und Hoffassaden.