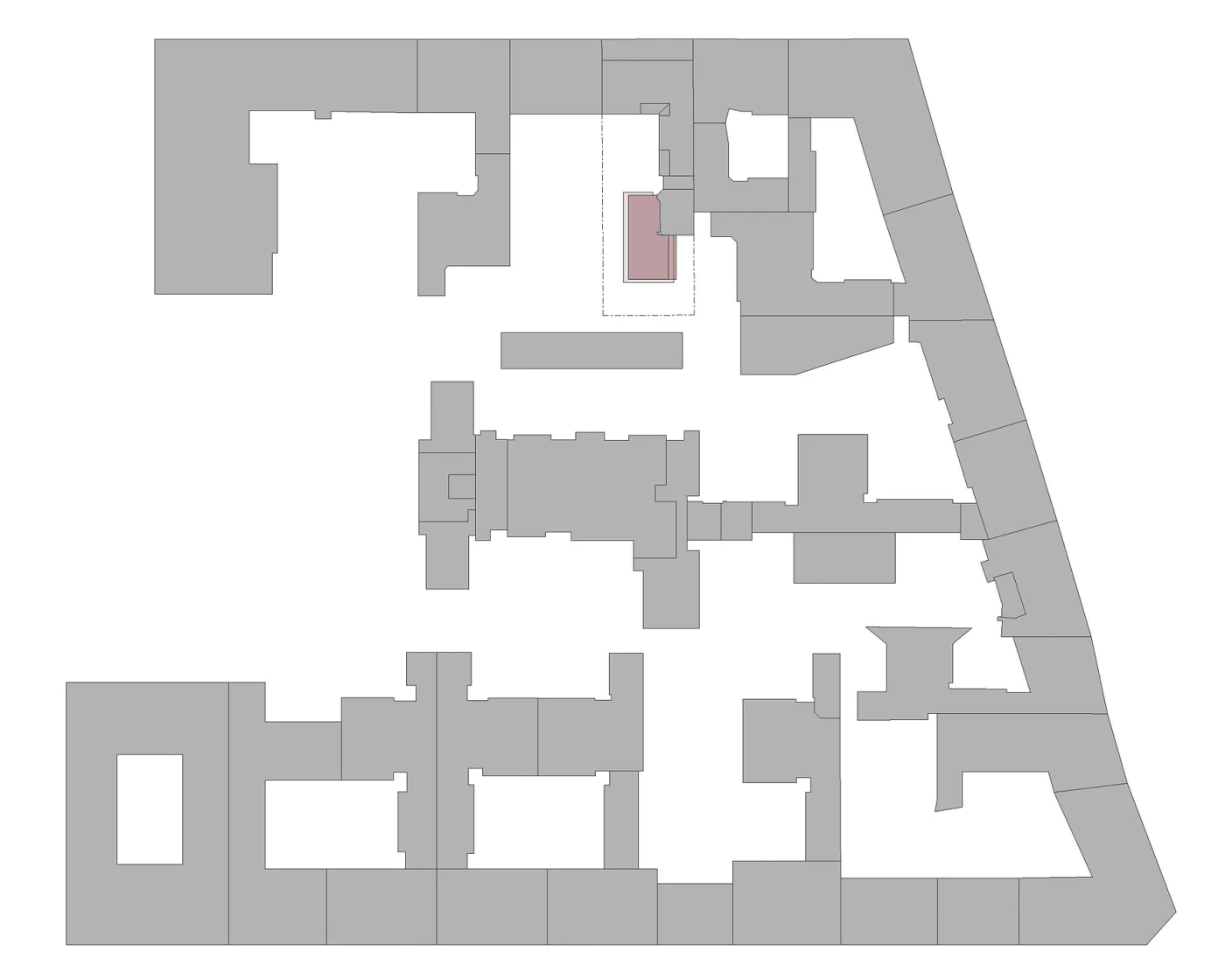
WALD 2 | STP Architekten

Anbau Wohnhaus

Berlin - Moabit

Projektstudie
BGF 500 m²
Bauherr Privat