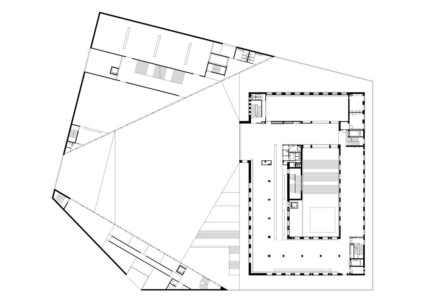
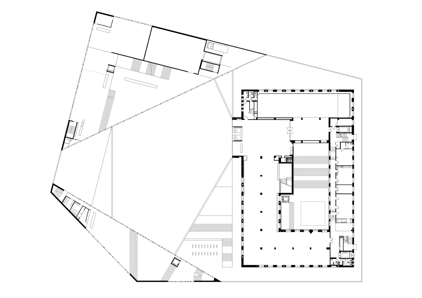
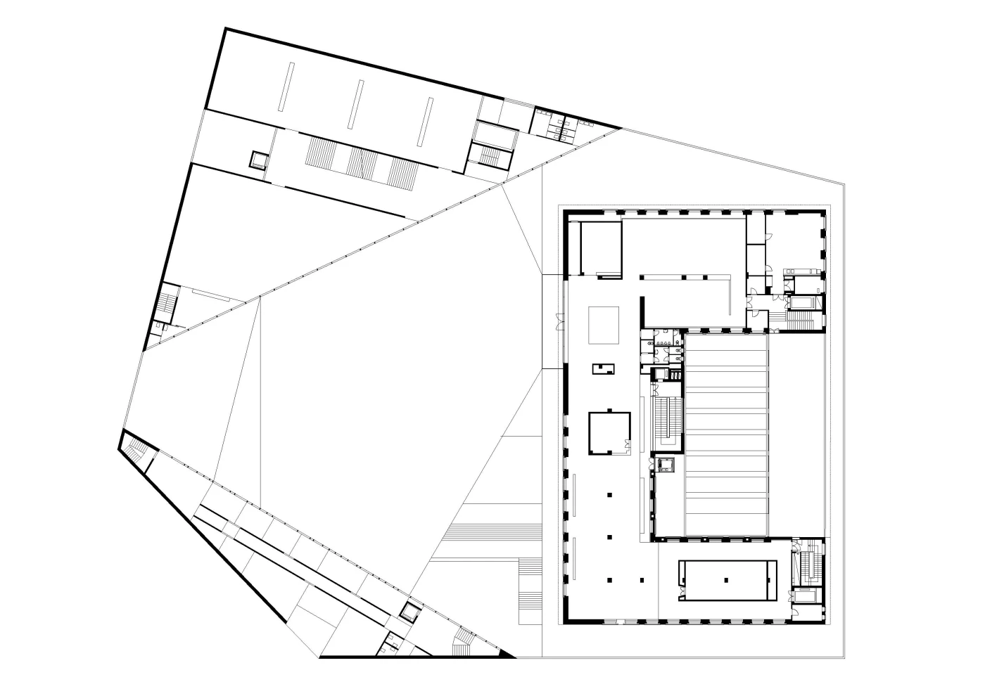
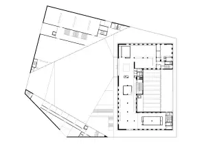
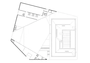
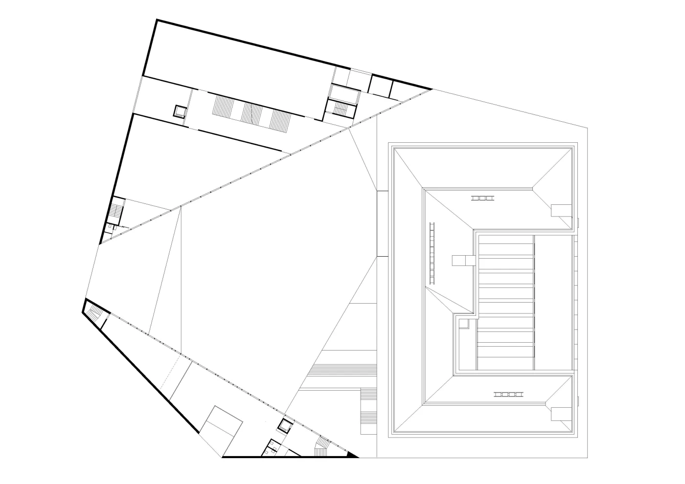
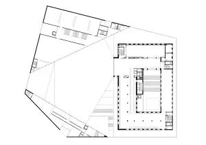
WM | STP Architekten

Museum

Wien

offener Realisierungswettbewerb

zusammen mit ARS Roberto Scarsato